リノまま新プロジェクト
~大人シンプルを楽しむ暮らし~
限定見学会レポート

入口の引き戸(ガラス)を開けると 広々としたキッチン&リビングがお出迎え

当社のカスタマイズリノベーションブランド「リノまま」が、神奈川県横浜市にあるタワーマンションの1室をフルリノベーションし、購入希望者の募集を開始いたしました。
人気のショッピングエリア・みなとみらい駅から徒歩3分という好立地に加え、シンプルで洗練されたインテリアデザインや様々な設備が注目を集めています。
今回、リノベーションを設計担当しました、リノまま営業部の李真弓部長に、現地見学会にて話を聞きました。

当マンションのアピールポイントは何でしょうか。

暮らしやすさ抜群の立地です。みなとみらい駅は横浜市西区にあり、この辺りは横浜港に面していて近代的な高層ビル、ショッピングモール、一流ホテルなどが立ち並ぶエリアで、都内へのアクセスも便利です。また観光スポットも多く、街路樹や公園も整備されていて、暮らしやすい人気のエリアとしてよく知られています。当マンションのエントランス前にも四季折々の緑が広がる共有ガーデンがあり、お子様連れが散歩するのにピッタリ。ショッピングエリアまで徒歩5分程ですし、どの年齢層の方にも暮らしやすい環境だと思います。

今回のリノベーションのテーマは「大人シンプルを楽しむ暮らし」ですが、特に工夫したことはありますか。

ファミリーにもディンクスにも気に入って頂ける間取りにしました。また、必要な機能だけを厳選し、毎日の暮らしを極上の快適と安心に変える、アップデート・リノベーションを目指しました。さらに、女性ならではの目線を活かして、日々の動線と間取り、機能性を重視したキッチンや洗面設備、大容量のたっぷり収納、そしてシンプルで洗練されたエレガントモダンなインテリアデザインにこだわっています。

高さ約2.3メートルの窓から太陽光が降り注ぐLDK
【リノベーション前】のリビング(左)と廊下(右)
リノべーション前の暗さを一新し、明るく開放的で高級感あるインテリアに

ポイントをまとめますと、次の通りです。

広々したオープンキッチンを楽しめるLDK 

狭かったLDKを広くし、開放感ある間取りにリノベーション。また、LDKから廊下にかけ、お手入れのしやすいラピスタイル(天然石風タイル調)フロアを使い、高級感あふれるエレガントモダンな雰囲気に。

たっぷり収納を贅沢に確保

大型ウォークインクローゼット、ファミリークローゼット、玄関横にシューズやコートを収納できるシューズクローク、さらにパントリースペースと、収納スペースを贅沢に確保。

主寝室(右)横に大型クローゼットが2つ
玄関横にシューズクローク&玄関収納

ホテルライクな洗面・ユニットバススペース

ゆったりくつろげるユニットバスの横には、横1.5メートルの鏡が付いた広々とした洗面スペース。天井には長さ1メートル程の物干しバー(ホスクリーン型)があり、洗濯物を一時干しすることができます。

収納スペースは鏡の中にもたっぷり
洗面スペースにある物干しバー

設計から完成まで、どのくらいかかりましたか。

施工期間は約2か月と3週間、関わったスタッフや工事関係者は、約40名です。
良い意味でかなり頑丈に造られており、想定よりも解体作業に時間がかかりました。通常のリノままの案件よりも設計~着工までがかなりタイト(通常は約3か月のところ、1か月!)だったので、監督の大平も私もかなりハードワークでしたが、高級層のリノまま顧客の最近のトレンドをたくさん盛り込みました。今回はリノままの監督&職人集団の知恵と工夫がたくさん詰まっておりますので、ご購入するお客様の笑顔を見るのが楽しみです。

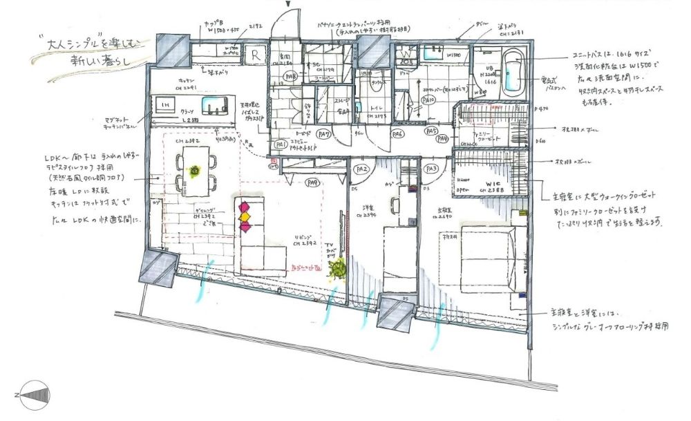
アイディア満載の、手書きラフプラン図

リノまま公式インスタグラムでは、今回紹介させていただいた横浜市の物件の他にも、リノベーション事例などが豊富にアップされていますのでぜひフォローお願いします!

リノまま/リノベーション(@renomama_) • Instagram写真と動画

ありがとうございました。

リノまま営業部長 李真弓